Block: Høringer
Høringer (Ikke migreret endnu)
Bemyndigelse til færdsel langs offentlige vandløb i Roskilde Kommune
Roskilde Kommune har meddelt bemyndigelse til færdsel langs Maglemose Å og Himmelev Bæk
Afgørelser om ny skov og natur Holmevej 2, 4622 Havdrup
Roskilde Kommune har meddelt dispensation til skovrejsning på ejendommen Holmevej 2, 4622 Havdrup. Samtidig har kommunen afgjort, at et konkret projekt for ny skov og natur ikke er omfattet af krav om miljøvurdering (VVM)

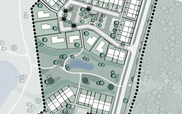
Lokalplan 743 for Boliger i Krathus og Bygning 32
Plan- og teknikudvalget har vedtaget lokalplan 743. Planen har været i offentlig høring fra d. 10.9 - 5.11 2025.

Forslag til lokalplan 735 og Kommuneplantillæg 5
Roskilde Byråd har på sit møde d. 17.12.2025 vedtaget at fremlægge forslag til lokalplan 735 med tilhørende kommuneplantillæg 5 til offentlig høring.
Forhåndsannoncering af ansøgning om miljøgodkendelse til Battericenter på Navervej 19, 4000 Roskilde
Roskilde Kommune, Rådhusbuen 1, 4000 Roskilde har modtaget en ansøgning om miljøgodkendelse af nyt battericenter på virksomheden Stena Recycling A/S, Navervej 19, 4000 Roskilde. Du har ret til at anmode om, at se sagens akter, jf. reglerne i lov om aktindsigt i miljøoplysninger inden den 14. januar 2026. I så fald kan du få sendt akterne til din e-boks. Ligeledes har du inden den 14. januar 2026 ret til at anmode om, at få tilsendt udkast til den nye miljøgodkendelse, når dette udkast er udarbejdet. Eventuelle kommentar til udkastet skal være modtaget inden 2 uger fra modtagelse af udkastet. Eventuelle kommentar og anmodning om, at få tilsendt udkast til miljøgodkendelsen skal rettes til Roskilde Kommune, Rådhusbuen 1, 4000 Roskilde, mail virksomhed@roskilde.dk.

